Acest superb penthouse duplex este situat în frumoasa zonă La Quinta din Benahavís, la doar câteva minute de Puerto Banús, Marbella, pe Costa del Sol. Amplasat într-o zonă căutată, această proprietate de lux oferă o experiență de locuire cu adevărat exclusivă. Cu designul său contemporan și finisajele de înaltă calitate, acest apartament nou construit este sigur să impresioneze chiar și cei mai pretențioși cumpărători.
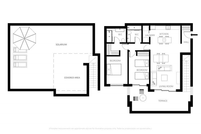
La intrarea în penthouse, veți fi întâmpinați de o zonă de locuit spațioasă și luminoasă, cu ferestre mari de la podea până la tavan care inundă spațiul cu lumină naturală. Layout-ul deschis conectează perfect zonele de living, dining și bucătărie, creând un spațiu versatil perfect atât pentru relaxare, cât și pentru distracție. Proprietatea dispune de o bucătărie de ultimă generație, echipată cu aparate moderne și spațiu amplu de depozitare. Băile elegante sunt dotate cu accesorii de top și finisaje luxoase. Cele două dormitoare de dimensiuni generoase oferă un refugiu liniștit, unul dintre ele cu baie proprie. Una dintre caracteristicile deosebite ale acestui penthouse luxos este solarium-ul său extins. Această terasă privată de pe acoperiș oferă vederi panoramice uluitoare asupra terenului de golf din jur și permite rezidenților să se bucure de soarele mediteranean în intimitate totală. Cu mult spațiu pentru mobilier de exterior și distracții, solarium-ul este locul perfect pentru relaxare și destindere.
Apartamentul este vândut cu două locuri de parcare subterane și o cameră de depozitare. Exista de asemenea posibilitatea de închiriere pe termen scurt. In ultimul an a fost închiriat pentru 465€/noapte și a fost complet rezervat pentru iunie, iulie și august.
În plus față de designul său excepțional și vederile uimitoare, această proprietate oferă și acces la o serie de facilități. Dezvoltarea dispune de grădini comunale frumos amenajate, o sală de sport cu vedere fantastică la mare și o piscină comună. Iubitorii de golf vor fi încântați să descopere că penthouse-ul este situat lângă prestigiosul La Quinta Golf, un vis pentru iubitorii de golf. Cu locația sa de top, facilitățile luxoase și vederile captivante, acest penthouse duplex este o adevărată bijuterie. Indiferent dacă căutați o locuință permanentă sau o casă de vacanță, această proprietate oferă mixul perfect de stil, confort și exclusivitate.