La Cala, Costa del Sol, Málaga
- €319,000
Prezentare generala
- Apartamente
- 2
- 2
- 134 m²
Descriere
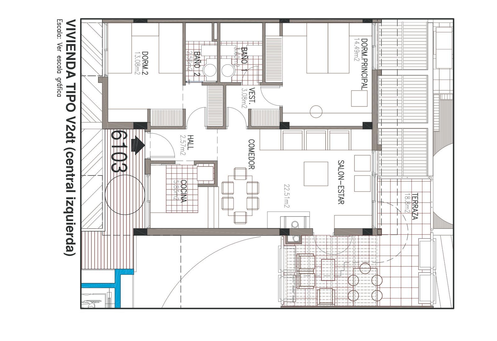
Cauti un apartament spațios cu o terasă orientată spre vest într-o comunitate bine întreținută cu multiple piscine? Suntem încântați să vă prezentăm acest apartament impecabil la etajul întâi, cu două dormitoare, unde ambele dormitoare beneficiază de băi proprii, oferind confort și intimitate în egală măsură.
Situat la doar cinci minute cu mașina de centrul La Cala de Mijas, proprietatea face parte dintr-o comunitate rezidențială foarte apreciată, situată în cadrul unor terenuri amenajate extinse, complete cu caracteristici elegante de apă. Locatarii se bucură de acces la trei piscine comune, un serviciu de concierge și liniștea oferită de un sistem de securitate cu camere de supraveghere monitorizate 24 de ore.
Apartamentul în sine este prezentat în stare excelentă pe tot parcursul său și este gata pentru ocupare imediată. Caracteristici suplimentare includ un loc de parcare subteran privat și o cameră de depozitare dedicată, făcând din acesta o opțiune ideală ca reședință permanentă, casă de vacanță sau proprietate de investiție.
Adresa
Deschide pe google maps- Adresa: La Cala, Costa del Sol, Málaga
- Oras: La Cala
- County/State: Costa del Sol
Detalii
Updated on februarie 3, 2026 la 8:02 am- ID proprietate HZR5264260
- Pret €319,000
- Dimensiunea proprietatii 134 m²
- Dormitoare 2
- Bai 2
- TIpul proprietatii Apartamente
- Statusul proprietății De vanzare
Listari similare
La Cala, Costa del Sol, Málaga
La Cala, Costa del Sol, Málaga- Camere: 2
- Bai: 2
- 117 m²
- Apartamente

- Diana Ioana Pampu
