Selwo, Costa del Sol, Málaga

  • €350,000

Prezentare generala

ID proprietate: HZR4764556
  • Terenuri de Constructii
  • TIpul proprietatii
  • 0
  • Dormitor
  • 0
  • Baie
  • 273 m²
  • Toate domeniile

Descriere

Super oportunitate pentru investiție pentru noua ta casă!
Cinco terenuri de vânzare în zona în rapidă dezvoltare a "Nouă Mile Aurii" – Selwo, unde se află cea mai prestigioasă școală privată americană, cafenele, un nou centru SPA cu terenuri de tenis și paddle și cele mai bune plaje.
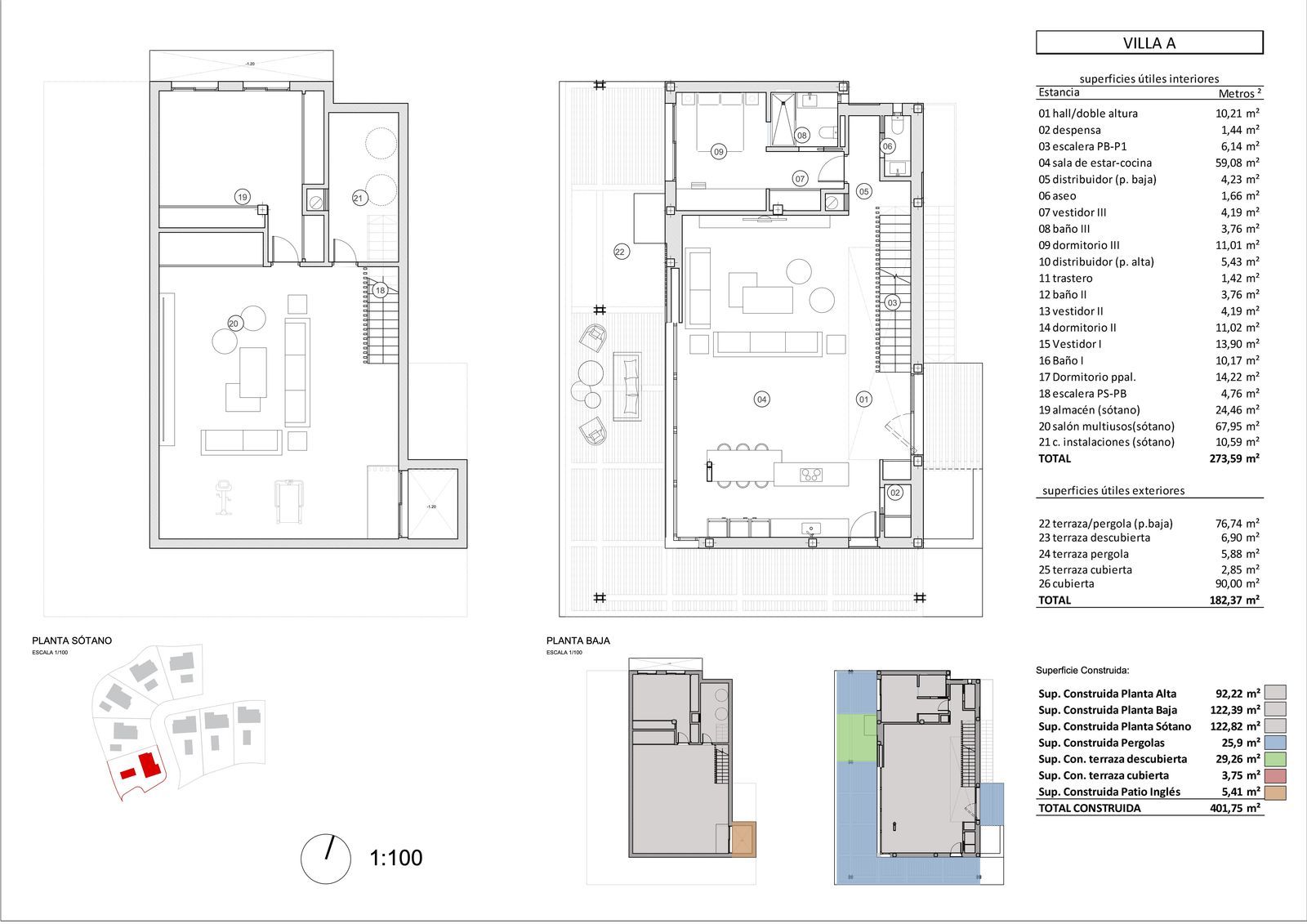
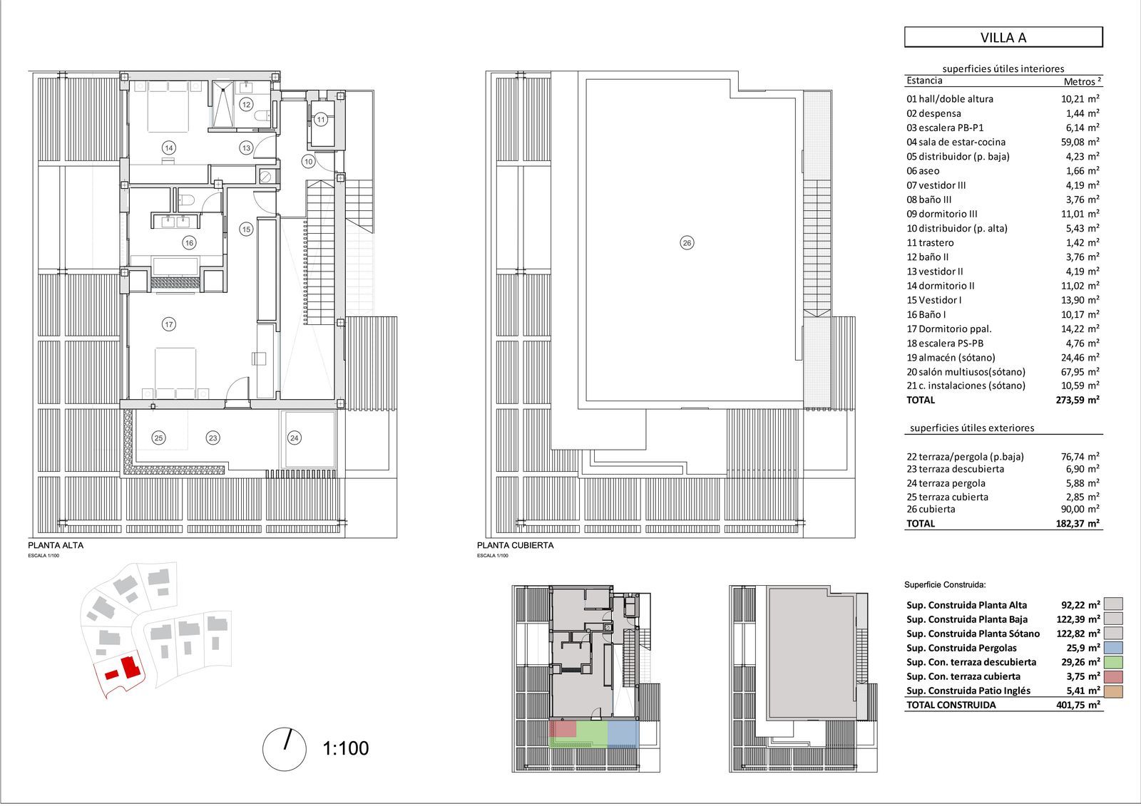
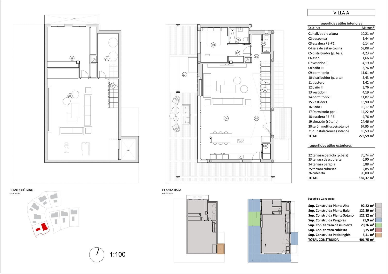
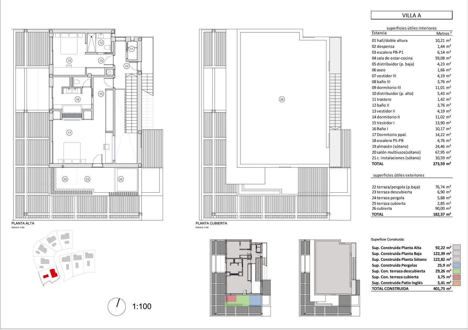
Terenurile au dimensiuni între 800 – 857 metri, procentul de construcție permis este de 25% plus subsol.
Proiectul și licența de construcție sunt incluse în prețul de vânzare, dar nu este OBLIGATORIU să executați proiectul, puteți schimba proiectul și alege designul dorit.
Sunați-ne pentru mai multe detalii.

  • Adresa: Selwo, Costa del Sol, Málaga
  • Oras: Selwo
  • County/State: Costa del Sol

Detalii

Updated on februarie 4, 2026 la 10:51 am
  • ID proprietate HZR4764556
  • Pret €350,000
  • Dimensiunea proprietatii 273 m²
  • Dormitor 0
  • Baie 0
  • TIpul proprietatii Terenuri de Constructii
  • Statusul proprietății De vanzare

Prețul afișat nu include taxele și cheltuielile asociate achiziției.
Pentru locuințele noi (primul transfer), se aplică TVA de 10% (sau 4% în cazul locuințelor cu regim protejat).
Pentru proprietățile revândute (al doilea sau următoarele transferuri), se aplică impozitul pe transferuri patrimoniale (ITP) de 7%.